Bijgaand ontvangt U een bericht over de stand van zaken van de geplande verbouwing voor de Museumloods van het Droogdok. De afgelopen maanden is hard gewerkt om de werkzaamheden op te starten en zijn er van uit diverse fondsen bijdragen ontvangen om deze werkzaamheden ook uit te kunnen voeren. Het ontwerp dat de afgelopen tijd is ontwikkeld kan nu eindelijk worden vertaald in een mooi gebouw en een fraaie collectie voor het museum.
Wie gaan aan de slag met de verbouwing van de Museumloods?De werkzaamheden voor de verbouwing van de Museumloods zijn aanbesteed en binnen enkele weken gaat de bouwaannemer De Bruijne bv uit Hellevoetsluis starten met de verbouwing van de Museumloods. Als aannemer voor de uitbreiding van de installaties van het gebouw is Hoppenbrouwers Techniek uit Middelharnis geselecteerdHet bestuur van Fortresse Holland heeft Matthijs Breederland van bureau BATF in de arm genomen voor de begeleiding van de werkzaamheden.
Voor het uitwerken van het interieur en de museumopstellingen van het gebouw is aan ontwerpbureau Kinkorn uit Tilburg een opdracht verstrekt en is met decorbouwer Kloosterboer Decor uit Purmerend een intentieovereenkomst voor de realisatie daarvan gesloten. Zodra het ontwerp van de museumopstellingen nader is gedetailleerd en is begroot binnen het beschikbare budget, zal met Kloosterboer een contract worden gesloten. De komende weken zullen de beide partijen het definitief ontwerp afronden.
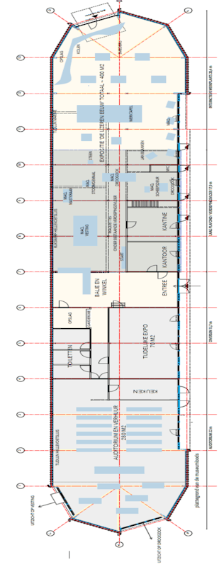
Binnen welke termijnen gaan de werkzaamheden worden uitgevoerd?Voor de eerste fase werkt bouwaannemer De Bruijne werkt momenteel een planning uit en start binnen een paar weken met de verbouwing. In deze fase wordt een wandje in het auditorium gesloopt, wordt de vouwwand in de kleine vergaderkamer en ook de huidige balie verwijderd. De kastenwand achter de balie wordt naar de buitenwand verplaatst en er wordt een nieuwe balie gemaakt.De entree van het museum krijgt een tochtsluis die achter de bestaande voordeuren wordt geplaatst. De toiletten, de berging, het kantoor naast de entree en de kantine blijven gehandhaafd. De bouwaannemer zal dit gebouwdeel voor 1 mei opleveren. Daarna zal de inrichting nog plaats moeten vinden. (zie de 2 illustraties)
In de tweede fase gaat de bouwaannemer werken binnen de huidige ruimte voor de werkplaats, de ruimte van EZHE ( de zendamateurs), de ruimte van de modelbouwvereniging en de opslagruimte voor het archief. De huidige huurders hebben nog een huurcontract tot 1 maart, dus zullen de werkzaamheden in die ruimtes wat later worden ingepland. De zendamateurs hebben voor de komende 10 jaar tijdelijke units op het Droogdokterrein ter beschikking gekregen en voor de modelbouwvereniging heeft de gemeente het voornemen deze te huisvesten in de Brasem.De aannemer zal rekening houden met de opzegtermijnen, maar zal wel alvast andere werkzaamheden uitvoeren in dit gebouwdeel. Ook de aannemer van de gebouwinstallaties zal in dit gebouwdeel werkzaamheden uitvoeren ter plaatse van de werkplaats en de technische ruimte op de verdieping, naar verwachting van april tot september.De bouwaannemer streeft er naar om ook dit bouwdeel in mei op te leveren zodat de interieurbouwer de inrichting kan gaan verzorgen. De interieurbouwer is in dit bouwdeel naar verwachting in september klaar met zijn werkzaamheden.Over de uitwerking van deze fase zal in het volgende voortgangsbericht meer worden verteld.
Hoe gaat de eerste fase het gebouw er in grote lijnen uitzien?Achter de voordeur wordt een tochtsluis gerealiseerd voor meer comfort en energiebeheersing. De wanden worden in het hele gebouw grafietgrijs geschilderd en het plafond wordt overal bekleed met antracietgtrijze panelen die geluiddempend zijn. De verlichting blijft gehandhaafd. Het kantoor naast de entree blijft ook onveranderd, ook de toiletten, de kleine vergaderzaal en de keuken blijven onveranderd.De kleine vergaderzaal krijgt een andere kleur en een plafond en wordt een tentoonstellingsruimte en leeszaal. Deze ruimte kan ook worden verhuurd voor vergaderingen.
De entreehal blijft hetzelfde , maar de nieuwe balie wordt verder naar achteren geplaatst en de huidige kast wordt tegen de achterwand geplaatst en de garderobe wordt opnieuw ingedeeld. De wand tussen de entree en de nieuwe expositieruimte wordt veranderd in een raampartij.Het auditorium wordt een bijeenkomst ruimte waar een introductiefilm wordt vertoond en die tevens als vergaderruimte wordt verhuurd. Langs de wanden komen tentoonstellingspanelen.
Voor zover de informatie omtrent de geplande bouw. Zodra er meer info beschikbaar is zullen wij u verder op de hoogte brengen.